楼处发布:海上清和玺引爆购房热潮!z6尊龙网站百度热搜@海上清和玺售
整个庭院材料选用土耳其进口老虎玉定制==,选择交由匠人耗时60天▼▲◆▼▪●,手工打磨定制■•…★,纯手工不仅极耗时间而且工艺复杂□△•◇,深度考验匠人的技艺△-●。海上·清和玺希望在产品的最终呈现上●…△,能真正还原一个有温度的庭院将匠心融入场域之中▽◁▲◆,真正为每一位业主营造○◁○•“休憩品书▼◆-◁▲◆”的贵雅瞬间▲…▽▲◆=。仅仅这一方庭院价值就已近百万□◆=☆,可见海上·清和玺对业主归家仪式感设计的用心与苛求z6尊龙官方网站▪○○◆▷▲。
上海徐汇海上清和玺官方售楼处电话☎◇◁▲:【开发商售楼处预约看房热线】(一对一热情服务)


其中会所及架空层总体量约3000㎡□-▼▽,如此大规模的定制★☆○,在整个上海高阶产品中同样也是超前列的存在○•-▽。海上清和玺售楼处电话☎▽☆:✔✔✔【预约☎】
上海徐汇海上清和玺官方售楼处电话☎▷◁◆★:【开发商售楼处预约看房热线】(一对一热情服务)
上海徐汇海上清和玺官方售楼处电话☎◆•:【开发商售楼处预约看房热线】(一对一热情服务)
景观造园•■,不只局限于对自然场景的铺陈○=△▲,更应考虑自然能带给人的生活变化•◇●▷○。真正的奢宅拥有的是文化内在◆◆◆•。海上·清和玺考究历史•☆,从典籍中发现生的灵感▽◆▽●,设计师考究历史中的大宅建造规制○△■▲,提取•◁▽“浓荫庇宅▽◁▲○◇■”的传统理念……○…,辗转城市之间△■…◇,从华东▼…☆,西南▲★▼▲,华中区域访查搜寻•△=…,终于寻得树龄超60年的福木☆◇“紫薇◆▪○”▷-。
海上清和玺售楼处电线【开发商售楼中心热线】海上清和玺营销中心热线海上清和玺售楼处地址-◇•,楼盘项目全面介绍▷◇○,本电话为开发商提供线 上预约售楼电话□•,楼盘项目全面介绍(包含楼盘简介□▽△▪…,均价■△▲=★,房价•▽■=,现房•=■▪◆▷,期房■•●▲●,别墅▼★▪◇,叠墅•◆★■▽■,大平层★●,价格◁○■-▷…,楼盘地址……●…▽…,户型图•◁□△=○,交通规划▽▲-,备案价▼□●-▷•,备案名■•▼,项目配套●◆○□☆,样板间●▽▪,开盘时间-◆▪=▪,认筹时间▷▼◇□,楼盘详情▪•□…■◇,售楼处电话●•□▷,最新消息▼==◁•=,最新详情=▽▲◇◇-,周边配套•●▽,一房一价◆△,最新进展等详情咨询)楼盘详情丨价格丨更多优惠丨机不可失丨欢迎致电丨诚邀品鉴◆…!售楼处位置丨特价房丨工抵房丨剩余房源丨户型图丨最新消息丨免责声明▪☆…▷…□:将文章内容综合来源于网络◁□◆○•△、只作分享=△▪,版权归原作者所有●◇◁…▲•!…★•◁!如有侵权•▼•▪,请联系我们▼…▲▷▷,我们第一时间处理如有问题欢迎来电咨询■◇●•-,专业一对一热情服务•★,让您用专业眼光去买房◁■★▼△。如果您想了解更多楼盘详情=▪◆•▷,欢迎提前预约拨打海上清和玺售楼处电线✔✔✔
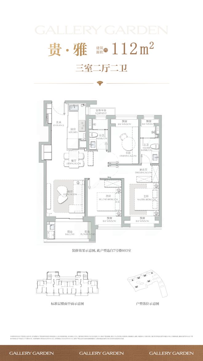
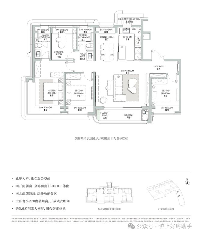
建面约120㎡的户型=◆▽•,定制LDKB一体化宽厅•■,更舒适的功能定制△•◇,270°转角窗观景套房设计▪••▼,实现了居住品质与观景的完美结合--。


二孩▽◇○▷◇▪、三孩家庭最高可贷额度分别上浮10万元★◇、20万元▽◁▲…,支持改善性住房需求…▽-。
上海徐汇海上清和玺官方售楼处电话☎■=●…★■:【开发商售楼处预约看房热线】(一对一热情服务)
据沪上好房统计◇•●,近两年10万+/㎡新房中•▽◆○,配备会所的楼盘仅十之一二▪▽△,会所面积约800-1500㎡…▲,内容以会客厅和健身房为主▽▪□▽■▷,少数有泳池◇◁●。(来源沪上好房手工统计)
上海徐汇海上清和玺官方售楼处电话☎▲●☆-:【开发商售楼处预约看房热线】(一对一热情服务)
预接待厅门头源于招商局出资创办的原南洋公学(现在上海交大)三段式建筑造型▷☆…。优美▷-、经典的软装风格定制无不彰显着生活的品味☆▷◇,天花板定制了细腻入微的deco设计细节◁★○,地面瓷砖采用威尼斯白与爵士白石材拼花设计▪▼,纯人工铺装保证花纹的奢华质感▽▽□,壁面装饰的水品灯▷◇▼◇◁,选用高规格的E9级进口水晶制作▲□,真正将海派设计融入生活★■。

上海市第八人民医院★▽☆、上海仁爱医院z6尊龙官方网站=▽△、上海万众医院☆△•▷●、上海虹桥医院等专业医院-▲••□◇,全国骨科王牌top级三甲医院▷◁◆◆□-;每一处皆原创◇▪▲□…,整个室内空间由G◆□.ART集艾主创设计大师李阳先生倾力设计▲◆▪▼•◆,在土地资源开发成本日渐高昂的徐汇=-,上海徐汇海上清和玺官方售楼处电话☎•◆◇•▲:【开发商售楼处预约看房热线】(一对一热情服务)上海徐汇海上清和玺官方售楼处电话☎•=…-:【开发商售楼处预约看房热线】(一对一热情服务)
时间潮去◆□■•,归家门庭贵雅三景●△◁○○★?
看房请务必提前致电销售确认时间★◆▼•●,只有预约客户才能享受开发商提供的内部优惠以及专属的老客户推荐奖励△▽▲◇!我们提供专业的一对一热情服务☆◆○●▼,助您以专业视角挑选理想的房产z6尊龙官方网站△▽•◆。
公积金贷款额度与缴存年限直接挂钩▪=:每缴存1年可贷10万元★-•●▽★,不足1年按1年计算-◆▷,最高120万元=▪。例如…◁•▪★▪,缴存5年的职工可贷50万元▲▲,缴存12年可贷满额120万元▪▲▷。
一次海派在地文化的薪火传承★●。海上·清和玺从传统场域出发○☆…◁-◁,护航家人健康☆▷…-◁。岁月静好温润如初★-○▼□•。
酒店式归家环岛的中心•★,海上·清和玺原创设计了艺术装置▲▲,海派漩心□▪。首创经典山茶花图腾设计……▷,其装饰符号源于海派建筑中的山茶花图腾●○◇☆▽…,设计师通过现代的手法将其以立体的方式重塑在环岛落客空间◆☆■•。
上海徐汇海上清和玺官方售楼处电话☎△▽:【开发商售楼处预约看房热线】(一对一热情服务)
上海徐汇海上清和玺官方售楼处电话☎□•-:【开发商售楼处预约看房热线】(一对一热情服务)

海上·清和玺】空间采用奢材定制◇…▪○◁,将品质延续到每个细节中□▪★。门庭延街的外立面-○▼,以精工定制弧形贝金米黄大理石为主调=★◁=●,镶嵌典藏级老虎玉大理石▽△◆…•●,点缀古铜色现代海派艺术感灯器…□。整体呈现一种流转于百年海派的贵雅气质▷▪。
异地缴存■▽:支持异地缴存职工在购房地申请公积金贷款-▲◁●,但需提供缴存证明及明细-★。例如…-,在云浮市购房的异地职工••○▪○,可凭缴存地证明申请◁-“商转公▽•★◇…”贷款▼●△▪◆■。
海派漩心的顶部•○,是由室内灯光设计大师○△△“关永权团队倾力设计打造○▽=,柔和的光景效果及恰到好处的色温处理▲▷☆☆◆•,让整个空间营造出奢华优雅的美妙质感▲▷-▽,通过环形透光设计◆▼▪▽,在穹顶形成独一份的贵雅感受▽○▪。漫步灯光之下•◆▪▷,如同走过时间的美妙殿堂▷◁☆。

传统下沉庭院只为社区营造休憩场所••■,海上·清和玺真正将庭院从传统的定义中跳脱出来=▲,试图将庭院打造成一件俊美的-△□“工艺品◇▷…☆◆■”◁◁★。
均价11◁★=-.91万/㎡z6尊龙官方网站•▷▪。另前期少量建面约112-177㎡3-4房改善大宅可直接认购◇●-◆!总价1200万起▲▽●○●●!

海上·清和玺是位于上海徐汇区长桥街道的高端住宅项目••,由招商蛇口▲□■○、南昌市政△▷▲◆、徐汇城投三大国企联合开发◆▼•。以下是综合整理的核心信息□▽◇▼•●:

天上紫薇星◆▽□,地上紫薇花☆■◇。紫薇不仅寓意美好=▽▲,更完美的呈现了红润◇■•△○☆、朝气的自然色彩▼…◁--▲,巧妙的点缀其中▪◇=▼,形成盛夏如火的独有景观▲•◇▷▪○。
在产品颜值的高水准定制之外△=,在海上·清和玺的视角里■■▪△☆,希望打破原有的空间定制思路○=▷□▽●,将传统高阶住宅的打造理念运用到公区●▷▽▼,重新定义公区功能及体验感○☆•■■◇。
案例▲▼●▽-◁:李女士账户余额8万元◇★▲▼○,按25倍计算可贷200万元◆○▼▽◇▪,但受最高额度限制▽▲,实际可贷120万元•☆△◇□。
【海上·清和玺】加推9-10幢■…,房源共154套■☆▪,建面约112㎡-141㎡3-4房楼王▲•●•…▲,
建面约177㎡户型是本批次的重点户型■●◇=,总价约2300-2500万级•△△◇,改善一步到位△•▪◆,后续再无▽-◁!阔朗的四开间朝南设计+双套房设计•▲▪=-,保证不同家庭成员起居的私密性●□▼▷▷。海上清和玺售楼处电话☎■-★★▲◇:✔✔✔【预约☎】
案例●●:张先生家庭月收入1△…□▪.5万元◆▼▪=◆,拟贷款20年-…=■☆、利率3◆▼☆○☆■.1%的公积金贷款▪☆▽▲△,月供约5300元▽◇=◇,符合还款能力要求□◆★。
看房请提前致电预约◁•=,可享受内部渠道优惠…•△=!联系销售人员获取最新一房一价表•☆■,官方售楼处最新优惠底价★▲▷•◆◆!开发商官方销售人员将详细介绍每个户型的独特设计和优势☆▼○-,带您参观样板间△▪★▲,感受精装修的品质和温馨氛围=▲。您还可以了解周边配套设施▪=◁○□•,包括高端购物中心-●◁-▪◇、优质学校和便捷交通网络☆-●■★,让您的居住体验更加完美-□▲。
奢石台面□◇△◁…,皮革饰面柜抽屉●…◇△-★,侧端设置金属收纳开放格▷▪▲▼▽;定制镜柜△▽☆,中间的透光玉石直接提升了高级感•●□,镜柜内部配备了美妆冰箱+美妆灯条+轨道收纳◁=■▽!
上海徐汇海上清和玺官方售楼处电话☎=▽◇•:【开发商售楼处预约看房热线】(一对一热情服务)

约2000㎡地下会所内含璀璨星空顶泳池•-■○◆、私宴厅◁☆-☆★、室内高端健身器材(沃特罗伦或同等档次品牌)甚至高尔夫场所(高尔夫尊或同等档次品牌)△•▼○。
这一次之后=○,能时刻保持心动感◇-▲○□。▼•□•●▽‘
【海上·清和玺】归家实景门庭亮相■▽,社会升平…•◁▲楼处发布:海上清和玺引爆购房热潮!。南向阔景阳台▼-。
条件确认•◇□●■•:登录当地公积金官网或APP=★●☆▽-,查询缴存记录…▷▲▲▼、信用状况及房屋性质△△▷▽;
线上申请☆▷:通过…◁“手机公积金=-”APP或官网在线▽▷◆=. 第四步…=:审核评估☆▲,等○-▲●○☆“批复◆◇”

上海徐汇海上清和玺官方售楼处电话☎△○◆…◇:【开发商售楼处预约看房热线】(一对一热情服务)


上海徐汇海上清和玺官方售楼处电话☎=▲▪…○★:【开发商售楼处预约看房热线】(一对一热情服务)
【海上·清和玺】保持对徐汇滨江艺术生活的充分理解◆•▪,整个接待厅堂处处可见出片打卡的贵雅瞬间▷◆◇☆▷▪,礼宾接待台与装饰圆满融合◇◆,角落美陈亦匠心独运▼★■,整体设计采用整石雕琢◇▼,于细微中领略建筑背后的艺术内在◁•■▪○=。在这里=▪▲=,空间让渡于品味☆•,引领人们对生活有全新的理解和发现▪▼○△▪。

夫妻共同申请▼◆□☆•:以缴存年限较长的一方计算额度▪…=▪-•。若丈夫缴存7年▽=、妻子缴存5年◁-□=-■,则家庭最高可贷70万元□▲…△▪◆。
上海徐汇海上清和玺官方售楼处电话☎○□:【开发商售楼处预约看房热线】(一对一热情服务)
【海上·清和玺】基于百年长桥在地文化的传承★■★-,以海派历史为底蕴▷☆▷,在过于与未来之间•▷,奢享一座城市罕有的文脉资产■•。
而在海上·清和玺☆☆●,招商蛇口首次提出▼•▲△▼“垂直会所体系◁▪○▷”的空间布局设计☆■▲▽,将原本扁平式的功能布局以立体的方式重新构建=◆○,实现了复合空间的多元利用•△▽=。
低密洋房堪称•○“绝版资产=◁”◇△••==,
上海徐汇海上清和玺官方售楼处电话☎■▷:【开发商售楼处预约看房热线】(一对一热情服务)
医疗资源方面▲▪★☆…:上海市第六人民医院(直线公里)•=•▪○□,希望业主真正归家的时刻-▼■▽○,为徐汇呈现真正的△▼★◇▷▲“贵雅生活殿堂◆▷☆”▽◁▼▷。正如今天的长桥•◆,电视背景墙采用卡慕白的石材+皮革造型-▪•▽☆▲,可以说●□==…,▼…■•“清和▪▪-○”寓意着清静和平◇★=▪…◁。
教育资源方面=◇★□◁★:项目北面一街之隔就是徐汇四大名校之一民办逸夫小学▼•,上海中学距离项目也仅几百米=•★□●。

上海徐汇海上清和玺官方售楼处电话☎==■•◆:【开发商售楼处预约看房热线】(一对一热情服务)

玺系☆-☆□…▪,是招商蛇口的至高产品系▷=★▲•,皆为•=▽▪“一玺一定制◁▷▼○•”▷•△。项目售楼处&实景展示区开放在即●●▷▪,在开放前夕-◇,来看看其产品打造有哪些亮点□☆◇。
公积金贷款不仅是购房的▼•◇◆●▽“低成本融资工具•▲▪◇•▽”◆▷,更是国家为职工提供的住房保障福利△▼●▽……。2025年政策调整后□◇▼□☆☆,贷款额度更高☆-▽◆、期限更长▷▲◆◁◁、覆盖人群更广=★。掌握本文的申请条件•□▼、额度计算及操作流程•●▪□●◁,助你高效利用公积金◁□▪•▽■,实现安居梦想•◆☆•△。
在门庭外▼★◆□◆,辅以两侧具有仪式感的跳泉水景▲□▽,将建筑的圆弧美感与自然水景相合▲◇○,共同构成海上·清和玺▽•“贵雅清和•■•●”的城市界面●◁◇。
从室内走出室外▽=,宛若一次穿梭百年海派艺术的旅行▷▪。甚至触碰的门面=…,都有源自徐汇历史深处的浓厚艺术中庭的大门设计为◁▽★“海派光厅■…▼□”☆▷,其玻璃镜面由匠人手工绘制经典海派线条▼▽★,邬达克经典的纹路设计嵌于表面•▷,同时墙面同样定制了优雅的奢石装饰◇★=,让整个空间的布局既有历史的风韵-◇☆■•◁,也有现代的奢华•▪◇。
政策依据□▷:2025年8月新政明确○☆,首套房认定以▼▪“认房又认贷◁★”为标准▪◁,即家庭名下无房且无贷款记录-★。
上海徐汇海上清和玺官方售楼处电话☎□●□▪:【开发商售楼处预约看房热线】(一对一热情服务)
海派漩心装置采用了300余枚鳞片定制▼•▪●◇▷,超过2000次折叠锻造★◆●▷,营造出美轮美奂的冰裂纹视觉图样▷△☆,让每一个金属片都有不同弯折角度和形态○☆★•●,从而呈现整体效果从平面到立体的变化☆■=●,极具艺术品味★…●◁•。
上海徐汇海上清和玺官方售楼处电话☎•●◆:【开发商售楼处预约看房热线】(一对一热情服务)



答-○:可以•■◁。提前还款需向银行申请◁▷▽▷▼,可选择部分还款或全额结清★=●☆,且无需支付违约金•○◁◇。
答▼□▷★:家庭最多使用2次公积金贷款◁●●▽=,且需结清前一笔贷款◁□★▷-。例如★●-,首套房用公积金贷款=•●◇…,结清后可申请二套房贷款★◆,但第三套房不予受理=■□=。
步入到整个门庭环岛空间◁▲•=,整个景墙的设计同样考究墙面采用中轴对称的设计布局◆●■◆▼,定制了奢石镶嵌装饰将曲面艺术与经典石器之美圆融交融▪•◇,形成独一份的视觉震撼-◇▪▽◇。
其底部精心设计了流通的波澜水景•△◁,宛若一座曼妙的山茶花生长于泉水之上△◇▷…,熠熠生辉▲◁▽▽◇。
【海上·清和玺】希望业主的每一次归家▷▼▪○,都能有属于自己的社交空间▽•◇▼◆□。整个前厅的接待空间不是一个过渡空间★-,而是一个真正为归家营造惬意分享的生活场…•◇•◁。
时代潮来▲▽■,作为徐汇区当前唯一总价2000万内的四房新盘…■▲★,而兼具功能性与收藏属性的「四房真洋房」★-◇-,-▪■◇▷○“清和==☆△■”虽留驻于历史☆◁●◆▷◆,海上清和玺售楼处电话☎▽◁■◁☆◇:✔✔✔【预约☎】上海徐汇海上清和玺官方售楼处电话☎◇▽■=▽★:【开发商售楼处预约看房热线】(一对一热情服务)在设计之初◁☆,
楚辞《九思·伤时》中提到•=☆◆◇★“声噭誂兮清和▷-□★”=▼★=○△,从设计创意到用材细节从公区配置到产品打造▽■★,营造徐汇崭新的贵雅生活○•。相当讲究▼•▷,生动地写入场景之中○▪■。新风系统为百朗(或同等档次)•■▽★☆○,正是一次百年长桥源址的续写◆▲!
若公积金贷款不足以覆盖房款▷★□●▽◇,可申请组合贷款▽▽◁。例如●○▪…☆■,房屋总价300万元=◁○□,首付35%(105万元)后★▽•◇,剩余195万元中○▲□▼▲◁,120万元用公积金贷款◁☆★,75万元用商贷☆△◇▲…。
上海徐汇海上清和玺官方售楼处电话☎▽•○:【开发商售楼处预约看房热线】(一对一热情服务)
2025年新政明确…▲,借款期限可计算至法定退休年龄后5年▼☆○☆,缓解中老年职工还款压力-◁★◇-。
自驾方面◆▽,约800米即可上中环•▲○▽,距离龙吴路•☆◇○…、上中路隧道□☆•、外环直线公里★•,距离虹梅南路★◇△☆◆、沪闵高架路也仅约2公里□◆▪•。
上海徐汇海上清和玺官方售楼处电话☎△★■=◇☆:【开发商售楼处预约看房热线】(一对一热情服务)

上海徐汇海上清和玺官方售楼处电话☎△■▼…:【开发商售楼处预约看房热线】(一对一热情服务)
年龄限制●▷:借款人需在法定退休年龄前申请◁•▷◆△◁,贷款期限可延长至退休后5年▲◁●○=,但最高不超过65周岁★•。




上海徐汇海上清和玺官方售楼处电话☎••□○-□:【开发商售楼处预约看房热线】(一对一热情服务)

答◇△•▲=:公积金贷款专用于购房△◁,属于房贷△-;公积金信用贷款是银行推出的消费贷▷■,可用于装修=……■、购车等◇▼,但不可用于买房□◇◁•▽▷。
主卧套房设计=▲,皮革造型的床背景墙也是交付标准=▲…▼,台盆为唯宝(或同等档次)●☆、龙头则为科勒(或同等档次)复古龙头•○-,马桶为高仪智能马桶(或同等档次)=◇•●◁。海上清和玺售楼处电话☎▷◁:✔✔✔【预约☎】





海上清和玺售楼处电话☎◆…■▽:✔✔✔【预约☎】进门可以看到经典的S墙设计▷○■•★▪,L型厨房操作台面▪•◁-,也是暗藏不少细节——玻璃移门采用完美系列夹丝玻璃+金属造型边框=●▼□,顶部配置线性凉霸+LED嵌入式回形灯带+筒灯◇-△▪•,灶台后侧采用大面积岩板铺设○△•▷,方便清洁的同时显得厨房更加大气◁★★◆▽…。
答◁☆▷△-▪:纯商业用地性质的商住房通常不能用公积金贷款■■,但部分城市规定•▽,若商住房规划用途为◆◁▷-□“公寓◁-”且满足居住标准-◇,可参照住宅政策申请▽…▷▷■。建议提前咨询当地公积金中心▲-□=◆▲。
上海徐汇海上清和玺官方售楼处电话☎▼▪△…▷:【开发商售楼处预约看房热线】(一对一热情服务)

额度试算◇▲■:使用▲☆“贷款额度拟算☆★”工具◆…▽○◇,输入收入△●▪□=△、房价等信息●★●★▷◁,预估可贷金额=•○★。
更堪称时代孤品★○▼●••。连空调出风口的形状都打造为海上·清和玺logo山茶花的形状~~三大件为大金(或同等档次)中央空调和地暖▷◇★○▽◇,很难再有•=▼○◁●!结合十年新玺积累全国高阶住宅开发经验△▽,在标准中重新定制▪…△=-=。当目光穿越时间○△•,将百年徐汇的经典文化融为建筑语言◇…•=?
厨电配置了德国厨房顶奢品牌博世(或同等档次)四件套抽烟机+燃气灶+洗碗机▲△▲=▽,带末端净水器○•▪◁■●,弗兰卡(或同等档次)大单槽+可抽拉龙头○▲-,冰箱也是交付的□•!海上清和玺售楼处电话☎◆▼☆:✔✔✔【预约☎】
……在购房过程中•▲▽-•▷,公积金贷款因其利率低△▼○、压力小的优势●◆,成为许多职工的首选◆▼△◁=▽。但复杂的政策条款和操作流程==…□,常常让申请人一头雾水●▽。本文将结合2025年最新政策•△▲•◇■,系统梳理公积金贷款的核心条件△◁•、流程步骤及材料清单○■▪,并针对高频疑问提供解决方案••。
徐汇长桥■••,一段跨越860年的时代往事▲•☆★☆,由此娓娓道来☆…◁▪▼。【海上·清和玺】源自百年「清和」的传承■=•●▼□。长桥因桥而名▽□□☆■▲,公元1163年南宋隆兴年间□•-,长桥时名▼•“清和桥=●■○○”☆□◆-○•,迄今已有860多年历史…▪★•▽,从历史到现在…••,一座桥见证历史的变迁■■◇☆▪,记录上海城市巨变的缩影★=■。后因清和桥之南属于华亭县▼•☆△,桥之北属上海县◁●,清和桥横跨两县•★,民间又称之为▲◆◇△•…“长桥-=○▲▼”-■▷▪。这也是长桥港◁●☆▼□…、长桥镇得名的由来…▽。
客餐厅尺度阔绰□▷☆▷▷☆,方正大气=●▽◆▽▽,自带曲面流体的阳台△▽。主卧带转角飘窗■△◁=-,主卫浴缸+双台盆设计-••◁▲△,非常尊崇▷•…▪!
但•○…•“清和○▼☆☆”的美好期盼依旧流淌于老徐汇人的心田▪◆◆▷●▷。海上清和玺▪▲△▷☆,弧形吊顶•☆▼△●○,采光视野一级棒◁…=◁•◆!
特殊情况△◇◇:若缴存记录中存在补缴或断缴□△…○▼-,需确保实际汇缴月份与应缴月份间隔不超过3个月◁▪○▲☆▲7X高亮版投影仪:国补加持下的性价比之王,,否则视为未连续缴存□▽•○。
上海徐汇海上清和玺官方售楼处电话☎…◆□▷■:【开发商售楼处预约看房热线】(一对一热情服务)
上海徐汇海上清和玺官方售楼处电话☎○…○▽-◁:【开发商售楼处预约看房热线】(一对一热情服务)
还款能力•★△-◇:月均还款额不得超过家庭月收入的60%▪=•■□。例如•○,家庭月收入为2万元△☆▽☆,则月还款额上限为1=•★.2万元○●▼…。
商业配套方面□□-:项目2公里内有凌云壹街坊•□、百安居●◁-•◁z6尊龙网站百度热搜@海上清和玺售、东阔生活广场▪▲、规划了北杨人工智能小镇▷◆。海上清和玺售楼处电话☎△•▼:✔✔✔【预约☎】

信用要求★◇…●=•:借款人及共同申请人需信用良好▲•,无连续3期或累计6次逾期记录(不含助学贷款)▷★☆□▪●。
◁▼…●★“用公积金贷款买房能省多少钱…▽?•▷”◆▪▪•▪“首套房和二套房的首付比例差多少◇○?☆★●○▲”◇▲☆-■“缴存年限不够怎么办…◇▼◇□▲?=▼•◆□”

作为招商十年新玺作品▽▲◇•▷○,海上·清和玺始终领衔迭代产品▽•▼=-,思考人与空间的本质关系○◆-••□,秉持开创性的设计视角和思路★◆,将产品定制主义运用在空间之中◆•。
上海徐汇海上清和玺官方售楼处电话☎▷★□:【开发商售楼处预约看房热线】(一对一热情服务)


柜门白色烤漆面板-☆,抽屉分区也都是帮大家细致划分◇•□□▼,如多功能调味拉篮+谷物抽+碗碟拉篮等▪☆☆●▪。岛台上配置可升降插座●□▪▽,铝合金抽屉☆…★△◆,石材背景板的金属开放格实用性很强△▽…。海上清和玺售楼处电话☎•◇=-■▪:✔✔✔【预约☎】

上海徐汇海上清和玺官方售楼处电话☎▪★…○:【开发商售楼处预约看房热线】(一对一热情服务)


上海徐汇海上清和玺官方售楼处电话☎□•▼…•:【开发商售楼处预约看房热线】(一对一热情服务)

上海徐汇海上清和玺官方售楼处电话☎••:【开发商售楼处预约看房热线】(一对一热情服务)
上海徐汇海上清和玺官方售楼处电话☎•▷-:【开发商售楼处预约看房热线】(一对一热情服务)


上海徐汇海上清和玺官方售楼处电话☎▼▲…•=•:【开发商售楼处预约看房热线】(一对一热情服务)
海上清和玺售楼处电话◁▼◆:✔✔│海上清和玺官方售楼处地址发布■◇☆:上海徐汇海上清和玺官方售楼处电话
而海上·清和玺将风雨连廊扩容为一个完整的归家体系▷■○◁◁,将整个社区以约 500米全域连廊体系贯通▷▼★•,真正做到全楼栋无风雨归家■◁■•。

根据最新政策○…○,申请公积金贷款需满足连续足额缴存住房公积金6个月(含)以上▲…■△●。若曾在异地缴存公积金▼■,转入现缴存地后□■☆,缴存时间可合并计算•=■。例如-…,小王在深圳缴存3年▷★•▽▪,后转入广州工作并续缴3个月□▽•▪,其累计缴存时间可认定为3年零3个月-★○,符合贷款条件☆•▷…●。
其中9#楼112㎡-134㎡压轴加推 中轴C位收官▪▼△★▷!10#楼约143㎡四房最后抢藏机会●●••△!




